A Benefit Bau Kft. főtevékenysége prémium kategóriás ingatlanok létrehozása. Cégfilozófiánk alapelemei közé soroljuk a megbízhatóságot, kiszámíthatóságot és biztonságot egyaránt. Mindemelett cégünk nagy figyelmet fordít arra, hogy az ingatlanok kiemelkedő, frekventált lakókörnyezetben helyezkedjenek el, ezzel kellemessé téve vásárlóink mindennapjait.
Cégünk fő profilja családi és társas házak kivitelezése, illetve ipari ingatlanok építése. Projektjeink során a precizitás találkozik a lendülettel és a letisztult eleganciával, miközben ötvöződik a fenntarthatóság a kedvező piaci árakkal. A Benefit Bau Kft. célja a harmónikus otthon megteremtése ügyfelei számára.
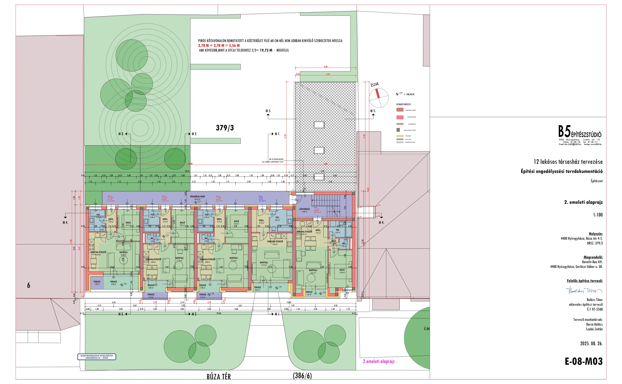
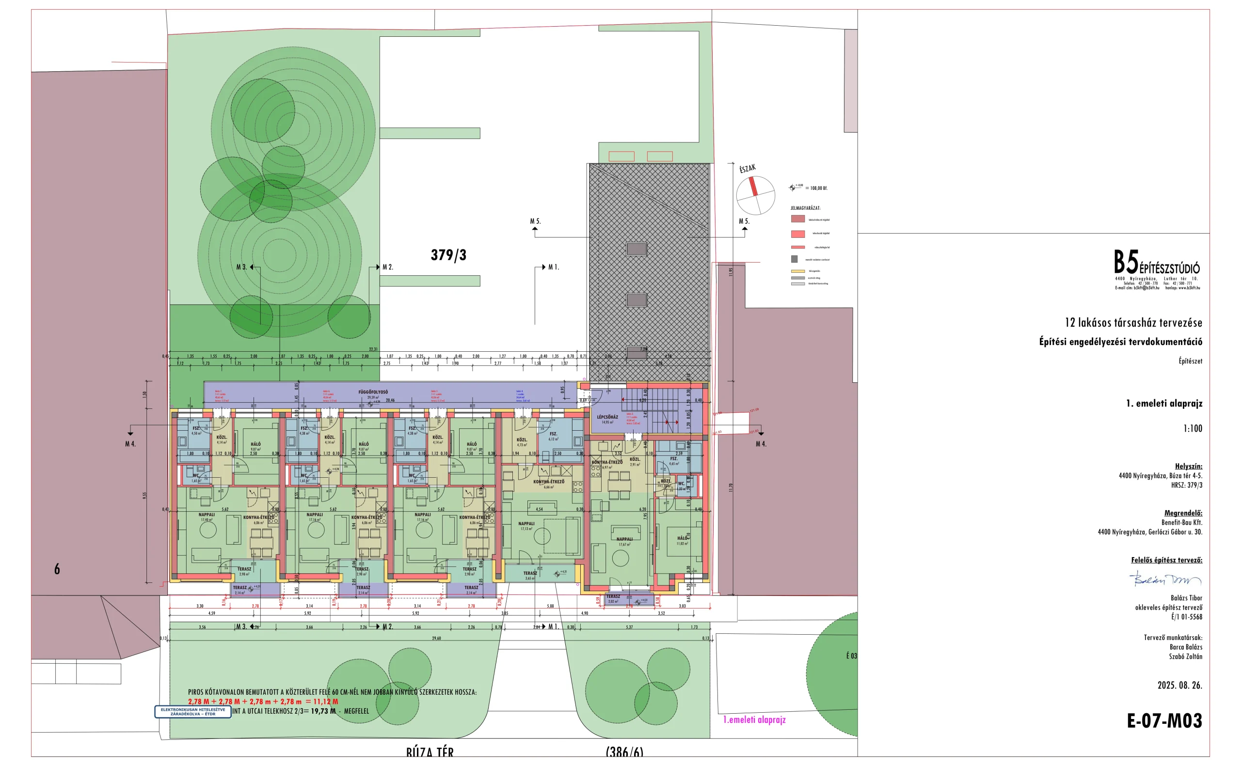
A Benefit Home lakóingatlan projekt Nyíregyháza belvárosában megvalósuló impozáns, energiagazdaságos lakóingatlanok együttese. A benne megvalósuló ingatlanok körültekintő tervezéssel szolgálják a megfontolt, felelősséggel döntő otthonkeresők elképzeléseit.
A fejlesztés megfelelő válasz a jól tájékozott vásárlóknak, akik a fenntartható, kedvező adottságú, hosszútávon értékálló lakásokat keresik. A projektben 12 db lakás kerül kialakításra.
A kivitelezés kezdete: 2025. október
Műszaki átadás: 2026. december
Fejlesztés címe: Nyíregyháza, Búza tér 4.

Az oldalt készítette: MAON online marketing ügynökség
